8.7.1 為在標準高度下通過運輸車輛進行的布置
接觸網限制了在鐵路平交道口處公路運輸的最大通行高度。根據德國有關公路交通的規定[8.11],公路車輛的高度限制在4.00m以下。超過這一高度時,只有經交通管理部門批準之后,才能允許超大型運輸車輛通過。德國鐵路平交道口的最高通過速度為每小時160km。根據接觸網Gbr 997 EN 50122-1,DIN VDE 0115-3的標準和德國鐵路準則,當接觸網的標稱電壓在AC 1kV或DC 1.5 kV以上時,要求接觸線或通過接觸網支柱架設的其他線路要與路面保持至少5.50m的凈空。即使是在最不利的情況下也應該保持這個距離。另外還要考慮到熱影響、接觸線和其他導線的移動以及導線上覆冰等情況。下面舉例加以說明。
為了不違反接觸網最小凈空至少要大于5.50m的要求,在以下情況下應考慮提升接觸線的高度:
—接觸線和路面的最小凈空 5.50m
—鋼軌升高的預留高度 0.05m
—冰載弛度 0.07m
—安裝容差 0.03m
—接觸網下降幅度 0.05m
—兩吊弦間的弛度 0.02m
—無風狀態下接觸線的高度 CWH=5.72m
既然德國鐵路規定時速為160km時接觸線的標準高度只有5.50m,為滿足平交叉道口處接觸線的最小凈空就需抬高接觸線?紤]到第2章和第5章所述的坡度和坡度變化,就需要相應地抬高平交道口上方的接觸線。

圖8.24 依據德國鐵路標準4Ebs19.01.01的限界門的限高布置
如果平交道口處接觸線下降并低于上述最小高度,則必須在平交道口處設置限制公路車輛高度用的高度限制結構來保護平交道口處的裝置。同時要配有警示標志,上面有 “小心,高壓危險” 的標識,還要按照德國公路交通規則設置相應的 (StVO) 交通禁止標志。圖8.24所示為限制高度的限界門,限界門的下沿距接觸線0.8m。交通標志牌上顯示的最高限度一定要小于實際限制高度0.1m。這樣的措施在鐵路穿過低矮橋梁時是必要的。例如,平交道口處的步行橋就會降低接觸網的凈空高度。
8.7.2 為通過超大型運輸車輛而永久性增加接觸線高度的布置
如果其他結構對接觸線高度沒有限制,為了提升過往車輛的限制高度可以在需要的地方升高接觸線。例如在通行常規的超大型公路運輸車輛的平交道口處,德國鐵路的接觸線最大允許高度大約可升高到6m。這是因為受電弓的最大活動范圍為6.5m的緣故。不過按照UIC散頁標準608所述,當受電弓通過接觸線時或在其他因素影響下接觸線會被抬高,因此該高度也會被降低。與標準高度不一致增加了安裝和維護的難度,例如采用更高的支柱會增加調整難度并加劇接觸線的磨損。因此只有在特殊審批的情況下才允許提升接觸線的高度。
進一步提高超大型運輸車輛通過的高度也是可行的,辦法是在平交道口將接觸網斷電并接地。若考慮車輛的搖擺,車輛和接觸線的高度差會縮短幾厘米。在最理想的情況下車輛的最大限高為6m。接觸網的斷電和接地需要專業人員,并應用專用的列車鎖定和剎車裝置。因而這種方案僅用于極少的需最大高度的特大型車輛通過的平交道口。
8.7.3 接觸網的間隔布置
在平交道口處中斷接觸網是在無高度限制條件下進行超大型運輸的另一種選擇。在接觸網中斷間隔前,列車降弓滑行通過道口。法國Le Havre附近的RN 9號平交道口 [8.12] 就是這種類型 (圖8.25)。接觸網在路兩側的門架處剛性下錨。

圖8.25 法國Le Havre附近為超大型車輛通過RN9號平交道口所設計的接觸網
如果司機由于疏忽忘記在平交道口前降下受電弓,接觸軌會把受電弓導向最高處,過了間隔后再導向正常運行高度。從發揮電力牽引最大效果的角度出發,這種方法并不理想,因為需要降弓、斷開主斷路器和降低速度。但其優點是不限制超大型車輛的通過高度。
8.7.4 通過移動腕臂臨時提升接觸網
8.7.4.1 概述
如果一個平交道口頻繁通過超大型車輛并需要頻繁地進行接觸線調整,則使用特殊的高度可調整的設計會更經濟。采用這種升高平交道口通過高度的特殊方案的重要準則是只能在需要頻繁調節高度,而其他超大型車輛通過方案又都不經濟的情況下使用。雖然設計此方案花費了相當的精力,但它可以避免接觸線的拆卸和由此而引起的線路長時間堵塞。這種方案可以用于電氣化鐵道和通行超大型車輛的國際公路、通往碼頭和工廠的公路的平交道口。
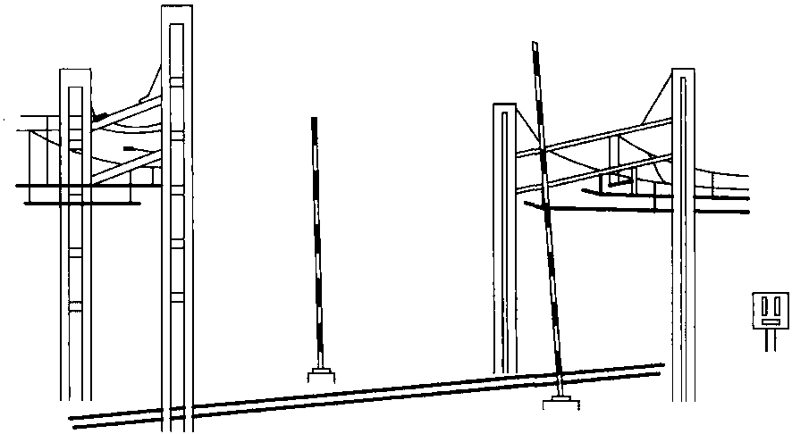
20世紀60~70年代在德國Wesel的B8號國家高速公路和Oberhausen-Emmerich鐵路線上的交叉口處修建安裝了一個接觸網提升裝置。它能滿足一般大型車輛從附近工廠到Wesel河Rhein港 [8.13] 的通行要求。在雙線鐵路兩側鄰近平交道口的雙槽鋼支柱上安裝了四套移動式接觸網腕臂(圖8.26)。
安裝在平交道口處槽鋼導軌上的接觸網腕臂和接觸線可以提升3m。提升操作是通過電動機帶動的鋼絲繩操作機構進行的,并由附近的平交道口欄木來控制。在升起位置時電力牽引中斷,大型車輛通過后裝置被移開。
柏林一斯特拉爾松干線鐵路在Biesenthal站與一段重載和超大型車輛運輸的國際公路平交。1998年此線路實施電氣化改造,并且計劃每年在平交道口處要通行300輛7m高的大型運輸車輛。當時除了建設高架橋的方案之外,還有一個備選方案,就是最終決定建設實施和試驗的接觸線提升系統[8.14]。安裝固定在支柱上的六套接觸網腕臂布置成平行四邊形,相互連接支撐,能以垂直面為軸旋轉 (圖8.27)。三支平行接觸懸掛的每一支都由
免責聲明:本網站所刊載信息,不代表本站觀點。所轉載內容之原創性、真實性、完整性、及時性本站不作任何保證或承諾,請讀者僅作參考并自行核實。










































